110kV集成变电站
随着国民经济和社会的快速发展,能源需求越来越大与人力资源紧张,建设工期紧,电网工程质量及工艺要求越来越高等矛盾越来越突出,变电站现有的建设模式已无法适应新的要求。要加快变电站施工进度,提高工程质量,变电站建设应采用模块化、标准化、工厂化生产,现场仅进行简单的组装模式。

集成式变电站是将变压器、多回路高压开关系统、无功补偿装置、绝缘母线、变电站综合自动化系统、通讯、远动、计量及直流电源等电气单元,按照系统性、安全性、可靠性、易维护、一体化的原则安装在一个隔热、防火、防盗、防潮、防小动物、五面通风、全封闭、可移动的钢结构箱体内。因其深入负荷中心,减少供电半径,提高供电质量,特别适合厂矿企业变电站的建设及改造,被誉为“21世纪变电站建设的目标模式”。

一、集成式变电站的优势:
1.节省土地、减少维护
集成变电站占地面积小,110kV集成站占地约为880平米,若使用GIS设备的全站占地仅需600平米;与常规站相比,可节省60%-80%的占地面积,符合国家节约土地政策。整站封闭运行结合外层防护措施,抗风沙、紫外线、酸雨、凝露,及周边环境污染相对集中地区。从根本上解决了常规变电站中的设备易损坏的问题,变电站可实行状态检修,减少维护工作量,可节约大量运行维护费用。

2.工厂预制化
用户选型或订货时,只要用户根据变电站的实际需要,提出一次接线图和设备技术参数,就可以选择我公司集成变电站的规格和型号,所有设备在制造基地预制,真正实现变电站建设工厂化,整个变电站从图纸确认到投运只需100~120天时间(常规变电站从建设到投运至少需要6-8个月以上),极大缩短了建设工期。

3.先进的整站设计技术
集成变电站国内领先技术及工艺,外壳采用热镀锌钢板,框架采用标准H型钢材料及制作工艺,有良好的防腐性能,保证30年不锈蚀。集成变电站外涂航空涂料,能保温隔热,保证设备运行的环境温度,使集成站整体不受环境及外界污染影响,可保证在-55℃~+70℃的环境下正常运行。集成站内一次设备采用国内技术领先设备,产品无裸露带电部分,全封闭、全绝缘结构、安全性高;二次设备采用常规综合自动化系统,也可采用进口PLC自动化系统,二次线应用先进的全站线束,整体布置,模块化插拔各个单元,回路性质用色线方式区别,完全实现无人值班运行方式。
4.综合自动化程度高
全站智能化设计,采用变电站综合自动化系统,分散安装,可实现遥测、遥控、遥信、遥调、每个单元均具有独立运行功能,继电保护功能齐全,可对运行参数进行远方设置,对站内湿度、温度进行控制和远方烟雾报警,满足无人值班的要求。根据需要还可以实现图像远程监控功能,及对设备的主要部位进行远红外测温显示及报警等。集成站也可采用PLC面保护综合自动化系统进行信息交换、逻辑计算及控制执行。
5.高标准的安全和防护设计
全封闭钢架结构,抗震性能好,设备底部悬空,设计可高出地面60cm~200cm,便于通风散热,利于设备防汛抗洪。设备间距满足国家电网规范的标准,能充分保证设备运行安全及人员巡检的安全。集成站四周设钢制防盗门及防盗遥视报警系统,处门以外的所有对外部分均以金属网封堵,能防止飞鸟及小动物进入,保温层采用防火棉填充,梁柱表面覆盖3.5cm厚的LG防火隔热涂料,各配电室内设有相应的防火装置,并配有遥视感应探头,可对烟雾和警。

6.节省企业投入成本
集成站和常规变电站相比能给企业节省大量的资金投入,减轻企业运行成本,缓解企业资金压力。就标准配置而言,集成站与常规站户内变电站相比能为企业节约资金10%左右。
7.集成变电站优势概括分析:
(1)全站寿命周期:从建站开始按照全年时间来考虑,(包括施工周期、故障率降低30%),以投运的宁夏天元锰业水泥厂为例,日产1.4万吨、按照水泥市场价格350元每吨计算、减少停电一天可为企业赢得效益490万元。
(2)占地面积:对比常规站集成变电站节约土地高达70%。
(3)后期电缆:根据目前我们已经建好的变电站参考,例如:①宁夏天元锰业电解锰三期西区110kv变电站,集成站比常规站节省2.7公里的路程,大大缩短了后期电缆的使用量、为该企业(节省电缆费用648万元);②全站二次电缆节省40%(16-20万)。
(4)运行、维护、人员配备:常规站维修人员需要7-9人,集成变电站为无人值守、根据需要配备2-4人即可;常规站大多设备和线路外露如意损坏,维护频繁,加大了维护率;集成变电站全户内站维护方便、所有设备都在站内,增加耐候性,减少了维护故障率(对比常规年节省人员费用40-50万的费用)。
(5)其他费用:回收率(集成变电站可回收率为90%,常规站30%)、自然环境因素、人为因素。
二、集成变电站实用化特点
1.整站全封闭结构,所带来的优势,所有设备采用户内安装,减少了自然环境对设备的影响。增加设备的耐候性,降低了设备的故障率,减少了维护成本。
2.采用全封闭钢制框架式结构,可大大降低变电站对外部环境的电磁污染。
3.运行过程中,由于其封闭的钢制结构,特别对于主变部分能有效隔绝主变的励磁电流,能明显降低主变运行时所产生的噪声污染。
4.钢制框架结构有别于传统门型钢构,根据不同设备的动/静载荷,在框架内连接横向、纵向的立柱、横梁,起到加固结构、支撑设备的目的。使得全站整体框架抗震水平达到8级水平。

5.整站所有钢材全部使用热镀锌处理工艺,在30年内不会出现锈蚀,保证了整站至少30年的使用寿命。
6.整站外部护板采用75mm厚玻璃丝棉复合板,增加了整体护板的强度,起到隔离防火防爆的目的。
7.主变室喷涂钢结构防火涂料,厚度在4~5mm,保证一级防火要求。
8.整站外墙涂料,根据当地气温环境可使用抗紫外线航空涂料,保证站内、外5~8℃温差,如风沙较大可使用抗风沙弹性涂料。
9.通风散热,变压器室、110kV设备室,装置风机进行强制通风散热、及事故强排。
当变压器处于运行状态时热空气会自然上升,室内底部会形成负压,冷空气自然会通过底部通风百叶窗进入室内,给主变降温。
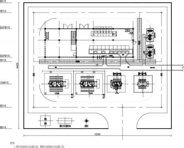
11.110kV集成变电站-基本型集成整站占地面积仅为880平方米,布置紧凑、结构合理、节省大量土地资源,十分有利于深入负荷中心。

12.生产周期短,全站结构为整体预装,现场所有部件的连接为螺栓连接即可,常规110kV集成变电站生产周期仅为90个工作日。
13.集成变电站整体悬空布置,可根据当地地理环境将集成站悬空高度定为600mm~2000mm之间,可防止洪水、小动物等对集成站内部的侵害。
14.回收利用率搞,整站钢制框架结构,可回收利用率高达95%以上。
15.二次的保护控制室采用独立的隔热保温层,保温层使用75cm厚的玻璃丝复合板,能够起到隔热、保温、防火、防爆的目的。
17.全站是一个有着自然通风的封闭环境,可防止站内、外温度差距过大造成凝露,对电器造成损害。
18.所有通风、散热口均采取过滤措施,防止大量的尘土等杂物或一些小动物进入站内。
19.站内照明采用LED照明,起到节能环保的目的。





